The 35th Street Community Planning Process was initiated by the City to determine the best use of a $500,000 budget from the Neighborhood and Commercial District Capital Program. It also included finding ways of coordinating this work with other programs, such as the Better Block Grant Program and other economic incentives. A public charrette was held to gather community input and begin to identify a strategy for the most effective use of the budgeted funds. Work Program Architects conducted pre-charrette studies and facilitated a community charrette to identify strengths, weakness and aspirations for the area before developing strategies and infrastructure options for future development of this historic corridor.

UDC 35th Street Better Block Work Session 3

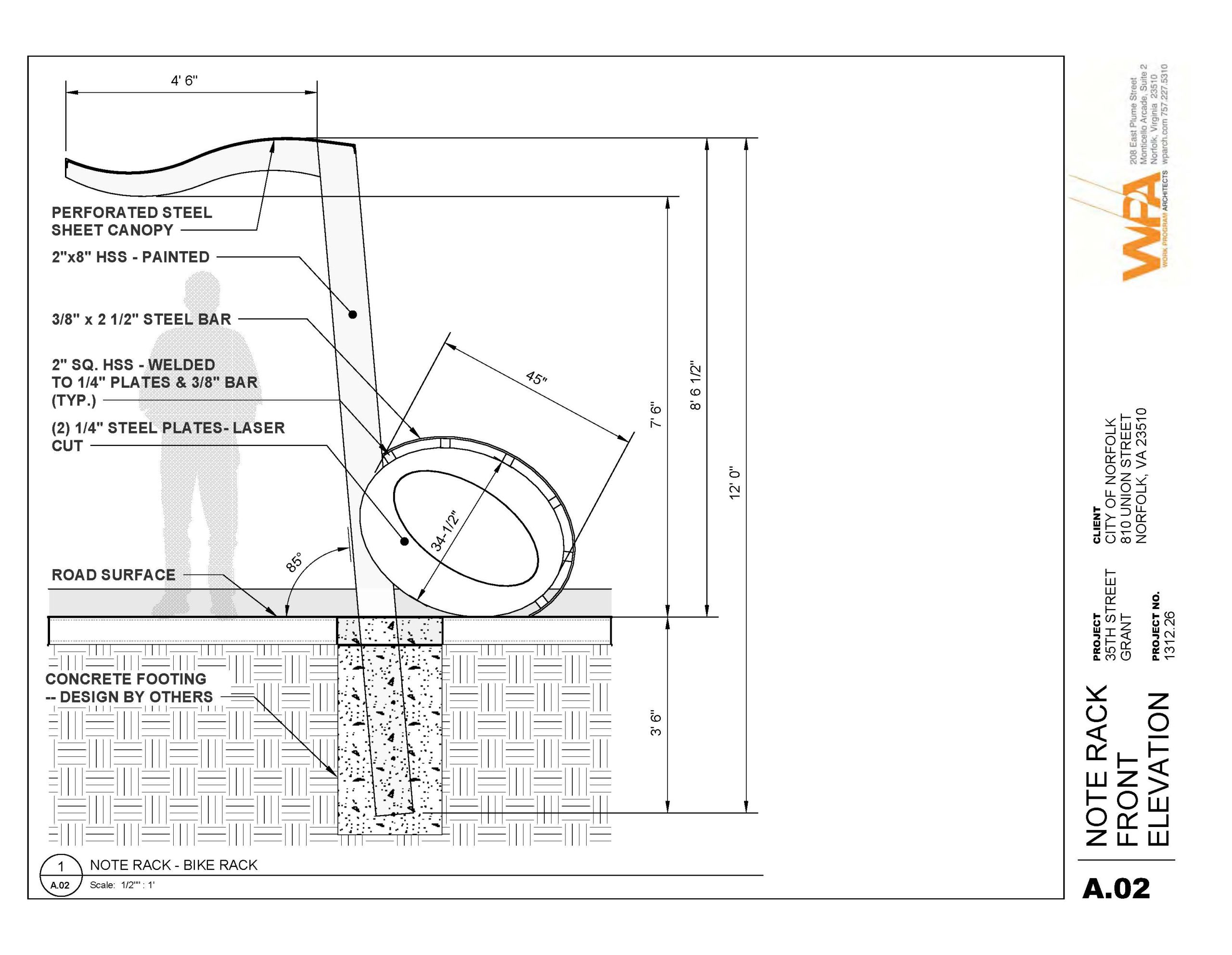
WPA sketched with the stakeholders on-site and offered design ideas to address rebranding of the district as “Live on 35th Street” or “The Soul of Norfolk.” Short-term and long-term solutions and a tool kit were identified to address community concerns including integrating a central bike and pedestrian path, slowing traffic, and providing gateways to this commercial corridor from main roads. Through the public process, WPA was able to bring the community to a consensus on how to spend the allocated improvement funds, and has worked to design, fabricate, and implement branding, wayfinding, and gateways in the form of custom-designed bike racks, benches and flagpoles that allude to musical instruments. New crosswalks are being added, and intersections are being considered as a canvas for public art that reinforces the brand. All of this infrastructure funding and support is being paired with economic development programs to support the growth of existing and new businesses.

UDC 35th Street Better Block Work Session 1